Для начала Вам нужно определиться – требует ли согласования Ваша перепланировка,
узнать об этом Вы можете обратившись к нам в форме обратной связи, или по телефонам:
+7 (495) 789-56-07, +7 (903) 018-02-20
или e-mail: plan.mos@bk.ru
Самостоятельное согласование
В г. Москва согласованием перепланировок занимается Государственная жилищная инспекция города Москвы (Мосжилинспекция).
Порядок предоставления государственной услуги по согласованию переустройства и перепланировки помещений в многоквартирных домах регламентирован постановлением Правительства Москвы от 25.10.2011 № 508-ПП «Об организации переустройства и (или) перепланировки помещений в многоквартирных домах».
Порядок предоставления государственной услуги по согласованию переустройства и перепланировки помещений в многоквартирных домах регламентирован постановлением Правительства Москвы от 25.10.2011 № 508-ПП «Об организации переустройства и (или) перепланировки помещений в многоквартирных домах».
Полный перечень работ, требующих согласование, можно скачать здесь:
что требует согласования
Если вкратце, то к мероприятиям, ТРЕБУЮЩИМ разработки проектной документации относятся:
— работы, затрагивающие несущие конструкции дома (например, устройство или расширение проема в несущей стене, перекрытии, устройство антресоли);
— работы, затрагивающие общее имущество многоквартирного дома и (или) изменяющие архитектурный облик дома (например, устройство или изменение входной группы в нежилое помещение, устройство навеса на террасе, устройство венткороба на фасаде, установка перегородки в приквартирном холле);
— работы по изменению габаритов санузла, ванной, перенос кухни в другое помещение;
— демонтаж подоконной зоны на балконе или лоджии с установкой дверей.
— работы, затрагивающие несущие конструкции дома (например, устройство или расширение проема в несущей стене, перекрытии, устройство антресоли);
— работы, затрагивающие общее имущество многоквартирного дома и (или) изменяющие архитектурный облик дома (например, устройство или изменение входной группы в нежилое помещение, устройство навеса на террасе, устройство венткороба на фасаде, установка перегородки в приквартирном холле);
— работы по изменению габаритов санузла, ванной, перенос кухни в другое помещение;
— демонтаж подоконной зоны на балконе или лоджии с установкой дверей.
Какие работы не требуют оформления проектной документации?
К мероприятиям, НЕ ТРЕБУЮЩИМ разработки проектной документации, относятся:
Если Ваша перепланировка не требует получения распоряжения о согласовании перепланировки, то после выполнения ремонта, Вы можете самостоятельно подать заявление через Портал мос.ру, выбрав цель обращения «Оформление приемочной комиссией акта о завершенном переустройстве и (или) перепланировке помещения в многоквартирном доме», заполнив необходимые поля интерактивного запроса и загрузив эскиз перепланировки с иными документами (при необходимости);
Пример эскиза можно скачать здесь:
- установка, перестановка или демонтаж сантехнического оборудования (плит для приготовления пищи, унитаза, раковины, мойки, ванной, душевой кабины) в габаритах существующих кухонь и санузлов;
- устройство или демонтаж встроенных шкафов;
- устройство или демонтаж ненесущих перегородок, а также устройство или перенос проемов (в т.ч. дверных) в таких перегородках.
Если Ваша перепланировка не требует получения распоряжения о согласовании перепланировки, то после выполнения ремонта, Вы можете самостоятельно подать заявление через Портал мос.ру, выбрав цель обращения «Оформление приемочной комиссией акта о завершенном переустройстве и (или) перепланировке помещения в многоквартирном доме», заполнив необходимые поля интерактивного запроса и загрузив эскиз перепланировки с иными документами (при необходимости);
Пример эскиза можно скачать здесь:
Короткое видео о согласовании по эскизу:
CRM-форма появится здесь
порядок действий, если согласование требуется
Если же Ваша перепланировка требует согласования, порядок следующий:
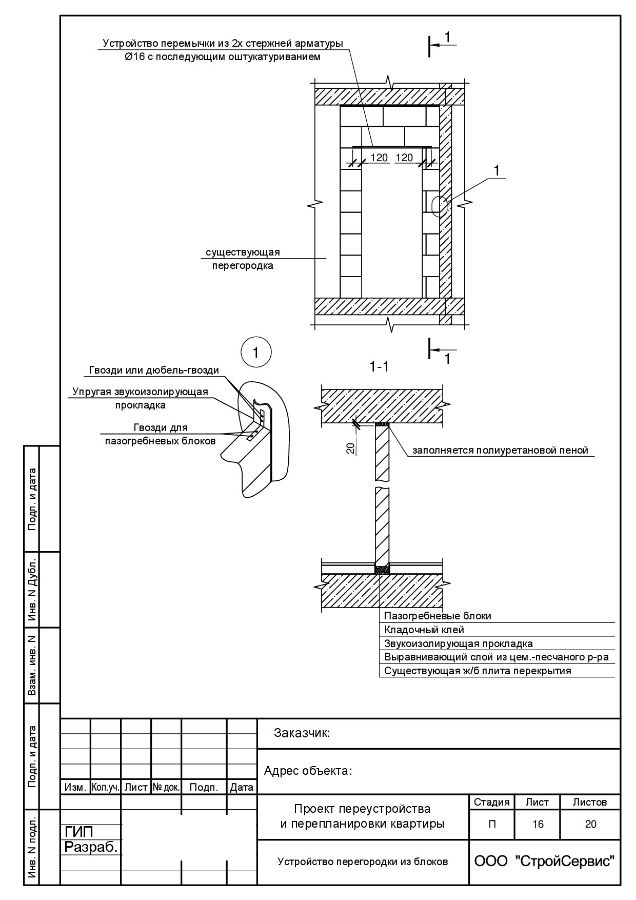
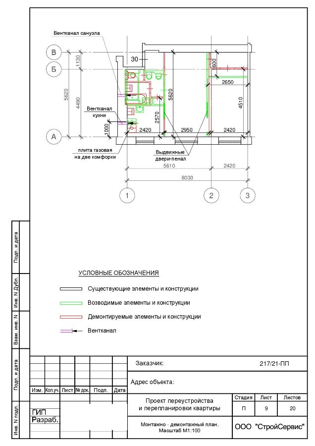
1. Оформить проект перепланировки
пример проекта можно посмотреть здесь:
1. Оформить проект перепланировки
пример проекта можно посмотреть здесь:
2. Оформить техническое заключение о возможности производства планируемых работ.
пример заключения можно посмотреть здесь:
пример заключения можно посмотреть здесь:
3. подать через Портал заявление, выбрав цель обращения «Согласование переустройства и (или) перепланировки помещения в многоквартирном доме», заполнив необходимые поля интерактивного запроса и загрузив проект перепланировки с иными документами (при необходимости);
Инструкцию по загрузке можно посмотреть здесь:
Инструкцию по загрузке можно посмотреть здесь:
4. Выполнить работы в полном соответствии с согласованным проектом;
5. После выполнения работ подать через Портал заявление, выбрав цель обращения «Оформление приемочной комиссией акта о завершенном переустройстве и (или) перепланировке помещения в многоквартирном доме», заполнив необходимые поля интерактивного запроса и загрузив акты срытых работ, журнал производства работ (при необходимости);
5. После выполнения работ подать через Портал заявление, выбрав цель обращения «Оформление приемочной комиссией акта о завершенном переустройстве и (или) перепланировке помещения в многоквартирном доме», заполнив необходимые поля интерактивного запроса и загрузив акты срытых работ, журнал производства работ (при необходимости);
6. Обеспечить доступ сотруднику Мосжилинспекции для приемки выполненных работ;
7. Получить акт о завершенном переустройстве и (или) перепланировке помещения.
Пример акта можно посмотреть здесь:
примеры документов:
CRM-форма появится здесь
Адрес
121309, Москва, ул. Барклая, д. 18/19, с. 2, оф. 2